Office building First floor plan and second floor detail dwg file
Description
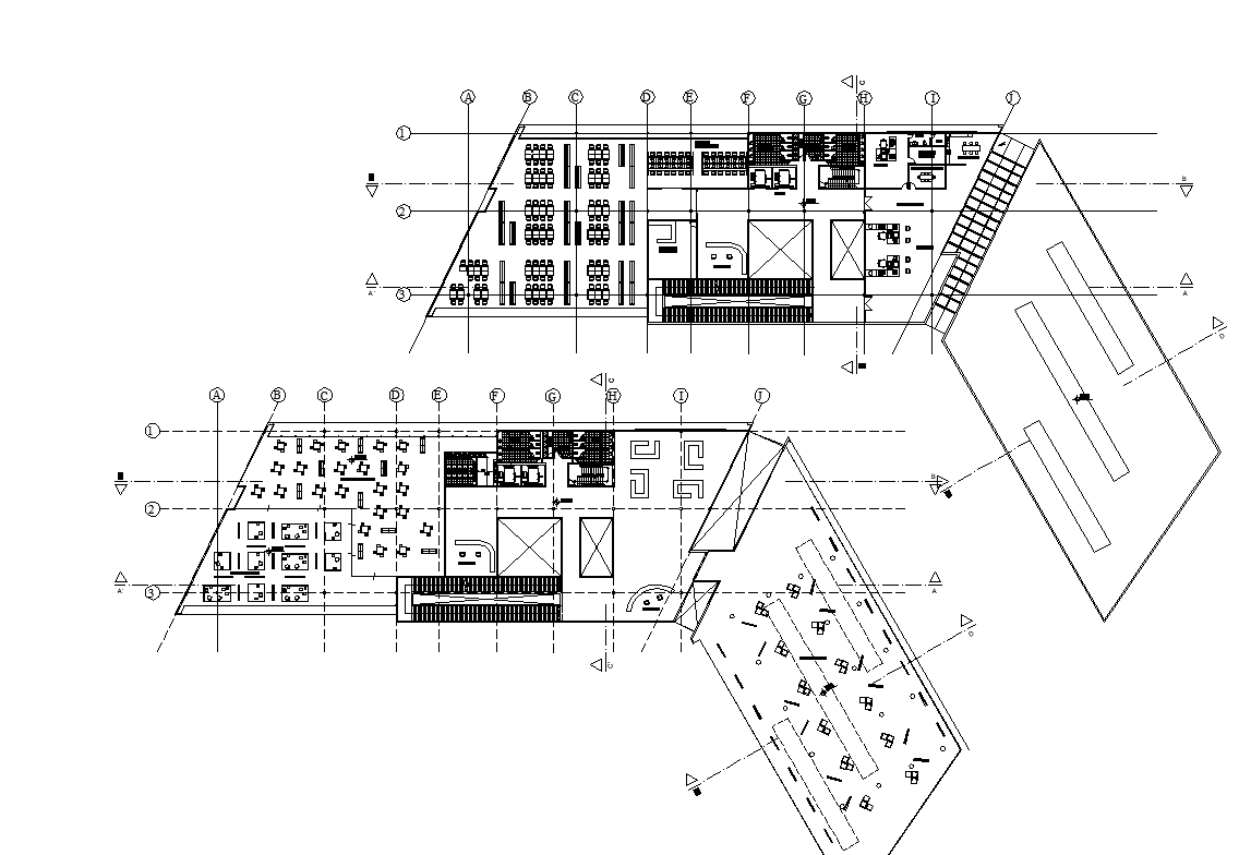
Office building First floor plan and second floor detail dwg file, including section line detail, furniture detail with chair, table, door and window, cut out detail, center line plan detail, toilet detail, etc.
Uploaded by:

