University basement floor and ground floor plan detail dwg file
Description
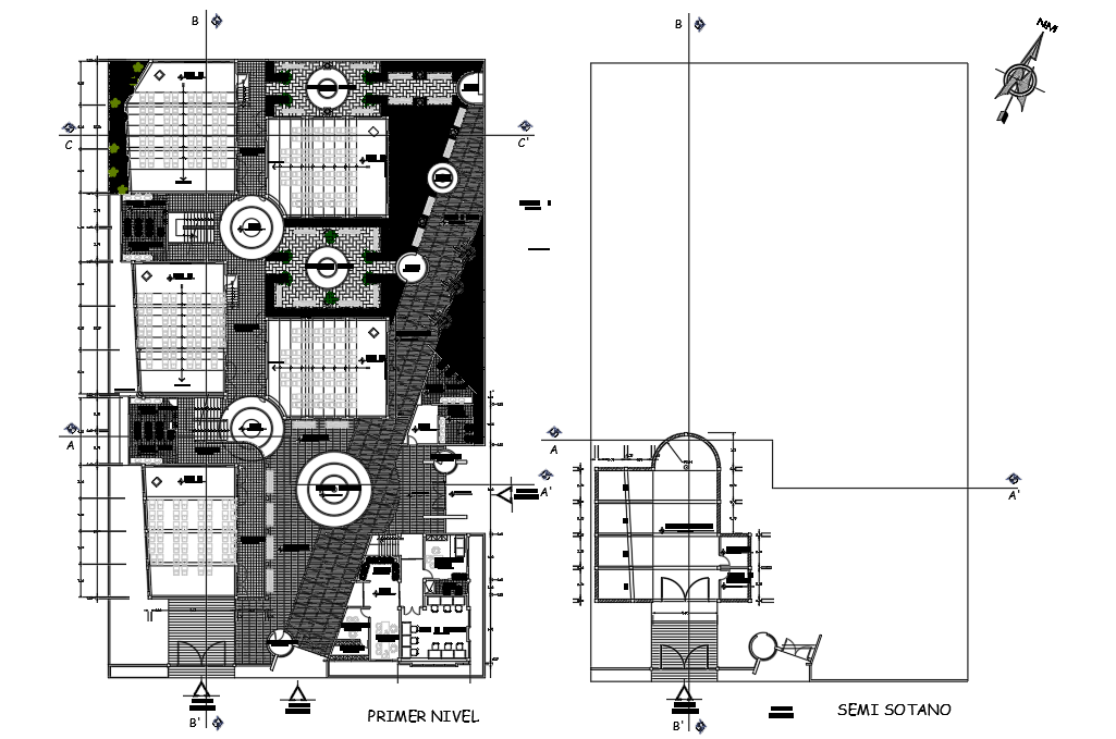
University basement floor and ground floor plan detail dwg file, section line detail, dimension detail, north direction detail, landscaping detail with tree and plant detail, furniture detail with table, chair, door and window detail, etc.
Uploaded by:

