LOGIN
HOME
CATEGORIES
UPLOAD FILE
PRICING
HOUSE PLAN
ABOUT US
CONTACT US
Bakery outlet elevation dwg file
Home
Categories
Architecture
High Rise Building
Bakery outlet elevation dwg file
Uploaded by:
Dipika
View Profile
View Profile
Description
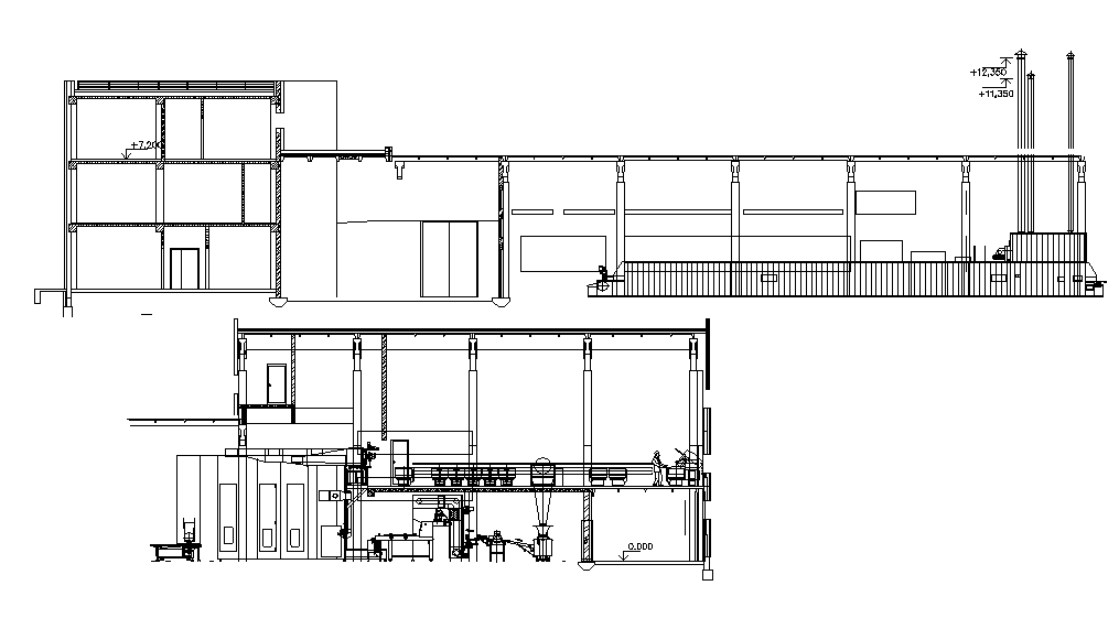
Bakery outlet elevation dwg file, here there is sectional elevation of a bakery outlet,machinery detail big bakery in auto cad format
File Type:
DWG
File Size:
823 KB
Category::
Architecture
Sub Category::
High Rise Building
type:
Free
Uploaded by:
Dipika
View Profile
Download
Add to libary
find Latest
Related
Files