LOGIN
HOME
CATEGORIES
UPLOAD FILE
PRICING
HOUSE PLAN
ABOUT US
CONTACT US
Bathroom elevation design dwg file
Home
Categories
Interior Design
Bathroom Interior
Bathroom elevation design dwg file
Uploaded by:
Dipika
View Profile
View Profile
Description
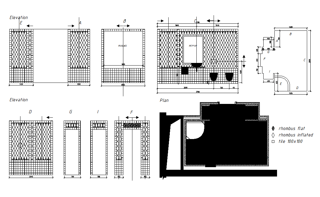
Bathroom elevation design dwg file, here there is sectional elevation of bathroom, wc details, tile detail, fittings and fixtures detail
File Type:
DWG
File Size:
231 KB
Category::
Interior Design
Sub Category::
Bathroom Interior
type:
Gold
Uploaded by:
Dipika
View Profile
Download
Add to libary
find Latest
Related
Files