LOGIN
HOME
CATEGORIES
UPLOAD FILE
PRICING
HOUSE PLAN
ABOUT US
CONTACT US
Bar bending diagram detail dwg file
Home
Categories
Details
Construction Details
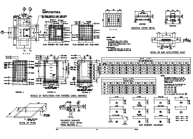
Bar bending diagram detail dwg file
Uploaded by:
Dhara
View Profile
View Profile
Description
Bar bending diagram detail dwg file, details of covered canal manhole, details of bar gate, plan showing top and bottom slab, etc.
File Type:
DWG
File Size:
1.1 MB
Category::
Details
Sub Category::
Construction Details
type:
Gold
Uploaded by:
Dhara
View Profile
Download
Add to libary
find Latest
Related
Files