LOGIN
HOME
CATEGORIES
UPLOAD FILE
PRICING
HOUSE PLAN
ABOUT US
CONTACT US
Bungalow elevation dwg file
Home
Categories
Architecture
Bungalow House Design
Bungalow elevation dwg file
Uploaded by:
Dipika
View Profile
View Profile
Description
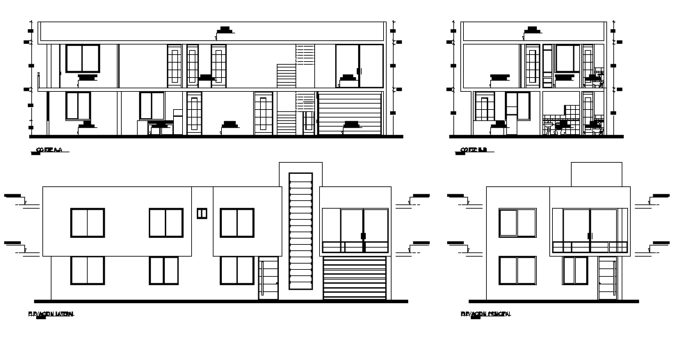
Bungalow elevation dwg file, front view and side view of a bungalow is shown, material detailing, posh bungalow design
File Type:
DWG
File Size:
1.1 MB
Category::
Architecture
Sub Category::
Bungalow House Design
type:
Gold
Uploaded by:
Dipika
View Profile
Download
Add to libary
find Latest
Related
Files