LOGIN
HOME
CATEGORIES
UPLOAD FILE
PRICING
HOUSE PLAN
ABOUT US
CONTACT US
Brick work detail dwg file
Home
Categories
Details
Construction Details
Brick work detail dwg file
Uploaded by:
Dhara
View Profile
View Profile
Description
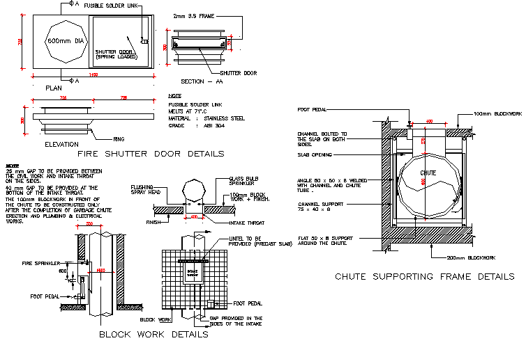
Brick work detail dwg file, falling frame detail and fire shutter door detail dwg file, naming detail, dimension detail, section line detail, etc.
File Type:
DWG
File Size:
955 KB
Category::
Details
Sub Category::
Construction Details
type:
Gold
Uploaded by:
Dhara
View Profile
Download
Add to libary
find Latest
Related
Files