Local comercial cortes
Description
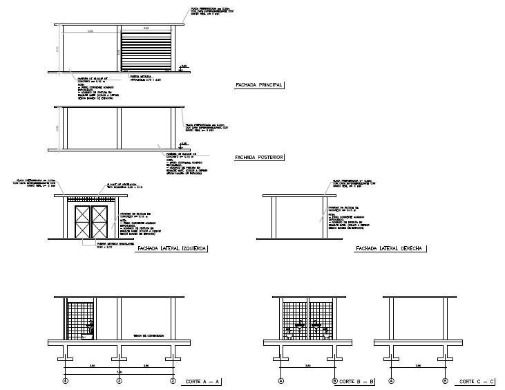
Consiste en un plano que contiene cortes y elevaciones de un local comercial multiproposito con baños de damas y caballeros
File Type:
DWG
File Size:
418 KB
Category::
Projects
Sub Category::
Architecture House Projects Drawings
type:
Gold

Uploaded by:
Jonathan
Vargas

