Urb. Terrazas de la Ensenada #2C-17
Projects
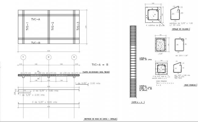
Local comercial techo
MORE DETAILS
Local comercial losa nervada
Local comercial fundaciones
Local comercial cortes
Local comercial planta
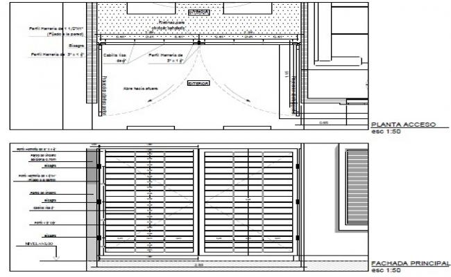
Front gate grid
door protector detail
Tren regulador de Gas