LOGIN
HOME
CATEGORIES
UPLOAD FILE
PRICING
HOUSE PLAN
ABOUT US
CONTACT US
Infrastructure installation detail.
Home
Categories
Details
Construction Details
Infrastructure installation detail.
Uploaded by:
Vaas
View Profile
View Profile
Description
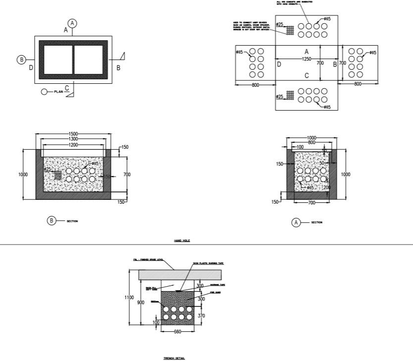
Infrastructure installation detail. hand hole and trench detail with all dimensions, labelling, plan, section and elevation detail with description.
File Type:
PDF
File Size:
230 KB
Category::
Details
Sub Category::
Construction Details
type:
Gold
Uploaded by:
Vaas
View Profile
Download
Add to libary
find Latest
Related
Files