LOGIN
HOME
CATEGORIES
UPLOAD FILE
PRICING
HOUSE PLAN
ABOUT US
CONTACT US
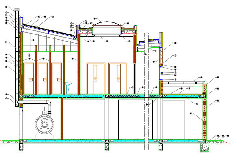
Section of housing with specification.
Home
Categories
Details
Architectural Detail Drawings
Section of housing with specification.
Uploaded by:
Vaas
View Profile
View Profile
Description
Section of housing with the specification. the section with a detail of roofing and wall with dimensions, labelling, and other description.
File Type:
DWG
File Size:
287 KB
Category::
Details
Sub Category::
Architectural Detail Drawings
type:
Gold
Uploaded by:
Vaas
View Profile
Download
Add to libary
find Latest
Related
Files