LOGIN
HOME
CATEGORIES
UPLOAD FILE
PRICING
HOUSE PLAN
ABOUT US
CONTACT US
Ceiling Plan In DWG File
Home
Categories
Architecture
Mall & Shopping Center
Ceiling Plan In DWG File
Uploaded by:
Chirag
View Profile
View Profile
Description
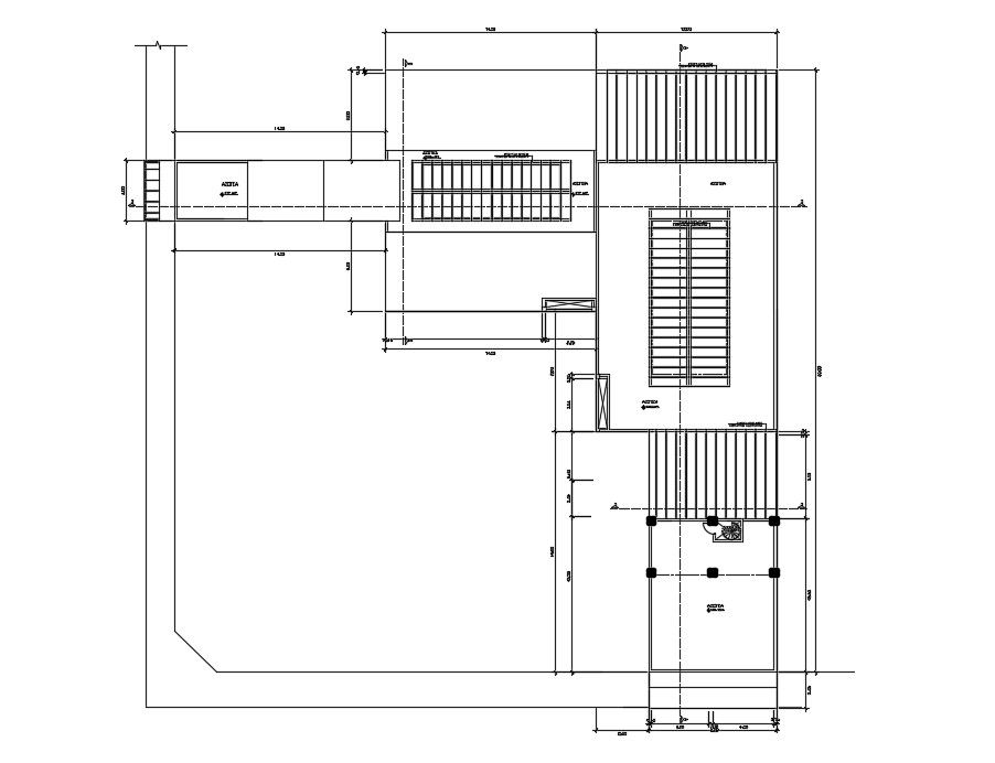
Ceiling Plan In DWG File which shows the roof plan details, wall construction, staircase design.
File Type:
DWG
File Size:
354 KB
Category::
Architecture
Sub Category::
Mall & Shopping Center
type:
Gold
Uploaded by:
Chirag
View Profile
Download
Add to libary
find Latest
Related
Files