LOGIN
HOME
CATEGORIES
UPLOAD FILE
PRICING
HOUSE PLAN
ABOUT US
CONTACT US
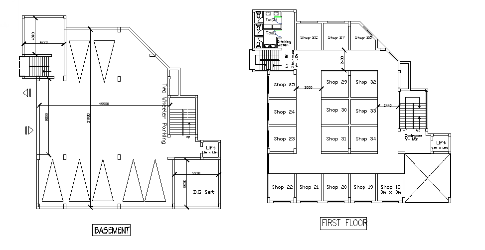
Layout plan of complex with shops
Home
Categories
Architecture
Mall & Shopping Center
Layout plan of complex with shops
Uploaded by:
Dipika
View Profile
View Profile
Description
Layout plan of complex with shops, top view of a complex is shown, complete details of shop is given
File Type:
DWG
File Size:
453 KB
Category::
Architecture
Sub Category::
Mall & Shopping Center
type:
Free
Uploaded by:
Dipika
View Profile
Download
Add to libary
find Latest
Related
Files