LOGIN
HOME
CATEGORIES
UPLOAD FILE
PRICING
HOUSE PLAN
ABOUT US
CONTACT US
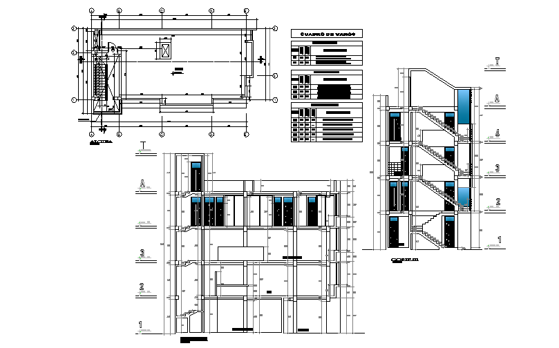
Sectional detail of a building
Home
Categories
Architecture
Corporate Building
Sectional detail of a building
Uploaded by:
Dipika
View Profile
View Profile
Description
Sectional detail of a building , front staircase details in auto cad form, layout plan is also shown
File Type:
DWG
File Size:
1.4 MB
Category::
Architecture
Sub Category::
Corporate Building
type:
Free
Uploaded by:
Dipika
View Profile
Download
Add to libary
find Latest
Related
Files