LOGIN
HOME
CATEGORIES
UPLOAD FILE
PRICING
HOUSE PLAN
ABOUT US
CONTACT US
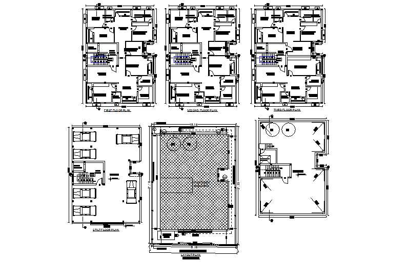
Building house detail dwg file
Home
Categories
3d Model
3D House Design
Building house detail dwg file
Uploaded by:
Dhara
View Profile
View Profile
Description
Building house detail dwg file, basement to terrace floor detail, naming detail, dimension detail, etc.
File Type:
DWG
File Size:
373 KB
Category::
3d Model
Sub Category::
3D House Design
type:
Gold
Uploaded by:
Dhara
View Profile
Download
Add to libary
find Latest
Related
Files