LOGIN
HOME
CATEGORIES
UPLOAD FILE
PRICING
HOUSE PLAN
ABOUT US
CONTACT US
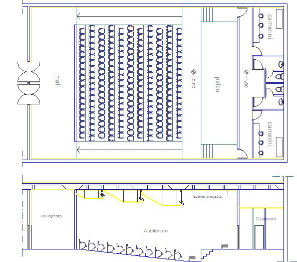
Auditorium detail dwg file
Home
Categories
Architecture
Corporate Building
Auditorium detail dwg file
Uploaded by:
Dhara
View Profile
View Profile
Description
Auditorium detail dwg file, with naming detail, toilet detail, leveling detail, furniture detail with the door, window, chair and table detail, etc.
File Type:
DWG
File Size:
53 KB
Category::
Architecture
Sub Category::
Corporate Building
type:
Gold
Uploaded by:
Dhara
View Profile
Download
Add to libary
find Latest
Related
Files