LOGIN
HOME
CATEGORIES
UPLOAD FILE
PRICING
HOUSE PLAN
ABOUT US
CONTACT US
Architect house plan detail dwg file
Home
Categories
Architecture
House Plan
Architect house plan detail dwg file
Uploaded by:
Dhara
View Profile
View Profile
Description
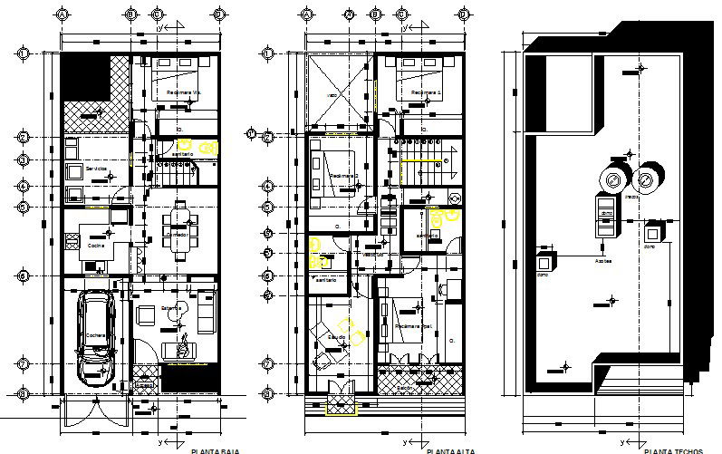
Architect house plan detail dwg file, including working plan detail, design detail with drawing room, bed room, kitchen, store room, toilet detail, etc.
File Type:
DWG
File Size:
4.2 MB
Category::
Architecture
Sub Category::
House Plan
type:
Gold
Uploaded by:
Dhara
View Profile
Download
Add to libary
find Latest
Related
Files