LOGIN
HOME
CATEGORIES
UPLOAD FILE
PRICING
HOUSE PLAN
ABOUT US
CONTACT US
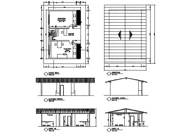
Medical post at industry Section, elevation and plan detail dwg file
Home
Categories
Architecture
Government Building
Medical post at industry Section, elevation and plan detail dwg file
Uploaded by:
Dhara
View Profile
View Profile
Description
Medical post at industry Section, elevation and plan detail dwg file, with dimension detail, naming detail, etc.
File Type:
DWG
File Size:
83 KB
Category::
Architecture
Sub Category::
Government Building
type:
Gold
Uploaded by:
Dhara
View Profile
Download
Add to libary
find Latest
Related
Files