LOGIN
HOME
CATEGORIES
UPLOAD FILE
PRICING
HOUSE PLAN
ABOUT US
CONTACT US
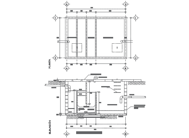
Septic Tank Grave Detail DWG Drawing for AutoCAD
Home
Categories
Details
Construction Details
Septic Tank Grave Detail DWG Drawing for AutoCAD
Uploaded by:
Dhara
View Profile
View Profile
Description
Download a detailed septic tank grave design in DWG format. Useful for plumbing, drainage layout, and architectural construction projects in AutoCAD.
File Type:
3d max
File Size:
29 KB
Category::
Details
Sub Category::
Construction Details
type:
Gold
Uploaded by:
Dhara
View Profile
Download
Add to libary
find Latest
Related
Files