LOGIN
HOME
CATEGORIES
UPLOAD FILE
PRICING
HOUSE PLAN
ABOUT US
CONTACT US
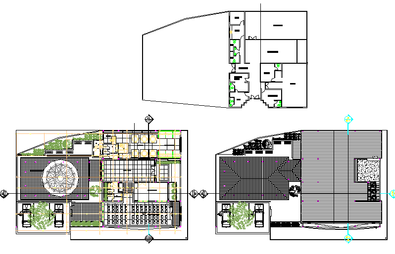
Remodeling cultural center plan detail dwg file
Home
Categories
Architecture
Corporate Building
Remodeling cultural center plan detail dwg file
Uploaded by:
Dhara
View Profile
View Profile
Description
Remodeling cultural center plan detail dwg file, with ground floor plan to terrace floor plan detail, section line detail, naming detail, etc.
File Type:
DWG
File Size:
2.2 MB
Category::
Architecture
Sub Category::
Corporate Building
type:
Gold
Uploaded by:
Dhara
View Profile
Download
Add to libary
find Latest
Related
Files