LOGIN
HOME
CATEGORIES
UPLOAD FILE
PRICING
HOUSE PLAN
ABOUT US
CONTACT US
Family house plan detail dwg file
Home
Categories
3d Model
3D House Design
Family house plan detail dwg file
Uploaded by:
Dhara
View Profile
View Profile
Description
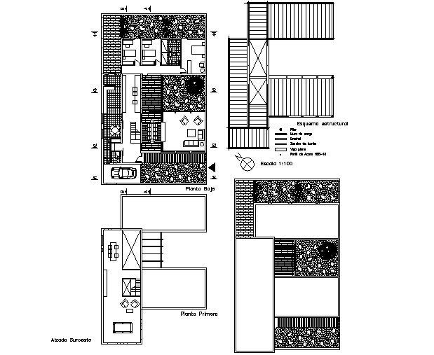
Family house plan detail dwg file, including north direction detail, ground floor to terrace plan detail, scale 1:100 detail, etc.
File Type:
DWG
File Size:
1.6 MB
Category::
3d Model
Sub Category::
3D House Design
type:
Gold
Uploaded by:
Dhara
View Profile
Download
Add to libary
find Latest
Related
Files