LOGIN
HOME
CATEGORIES
UPLOAD FILE
PRICING
HOUSE PLAN
ABOUT US
CONTACT US
Flooring layout plan dwg file
Home
Categories
Architecture
Corporate Building
Flooring layout plan dwg file
Uploaded by:
Dipika
View Profile
View Profile
Description
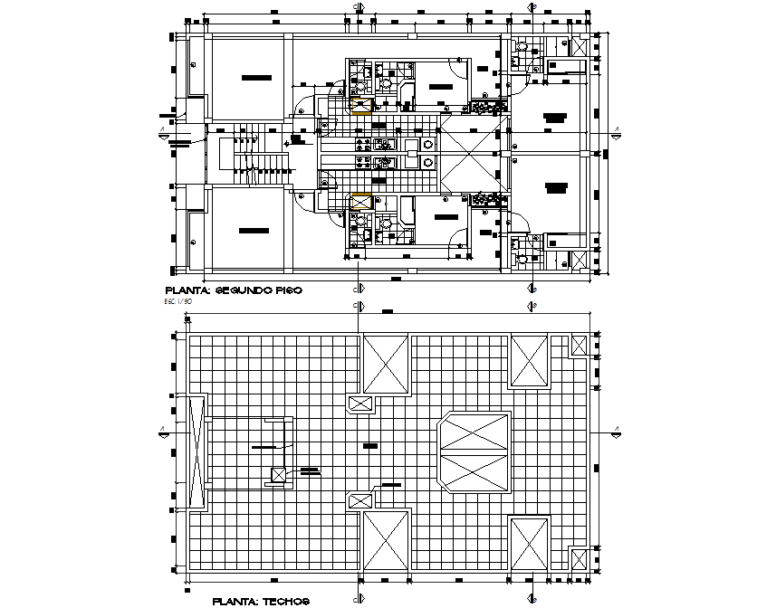
Flooring layout plan dwg file, top view flooring layout and furniture details
File Type:
DWG
File Size:
287 KB
Category::
Architecture
Sub Category::
Corporate Building
type:
Free
Uploaded by:
Dipika
View Profile
Download
Add to libary
find Latest
Related
Files