LOGIN
HOME
CATEGORIES
UPLOAD FILE
PRICING
HOUSE PLAN
ABOUT US
CONTACT US
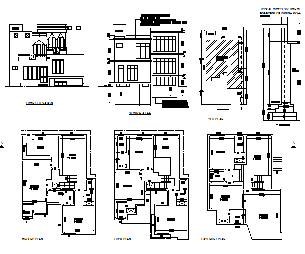
Housing plan detail dwg file
Home
Categories
Architecture
House Plan
Housing plan detail dwg file
Uploaded by:
Dhara
View Profile
View Profile
Description
Housing plan detail dwg file, with section line plan detail, plan, elevation and section plan detail, section line detail, front elevation view detail, etc.
File Type:
DWG
File Size:
499 KB
Category::
Architecture
Sub Category::
House Plan
type:
Gold
Uploaded by:
Dhara
View Profile
Download
Add to libary
find Latest
Related
Files