House electrical plan detail dwg file
Description
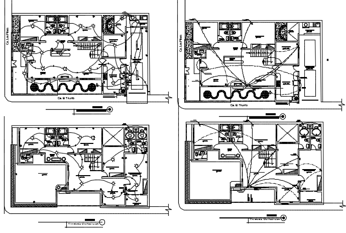
House electrical plan detail dwg file, with basement floor to terrace floor plan detail in the electrical plan, cut out detail, toilet detail, bathroom detail, naming detail, etc.
File Type:
DWG
File Size:
7.6 MB
Category::
Electrical
Sub Category::
Architecture Electrical Plans
type:
Gold
Uploaded by:

