LOGIN
HOME
CATEGORIES
UPLOAD FILE
PRICING
HOUSE PLAN
ABOUT US
CONTACT US
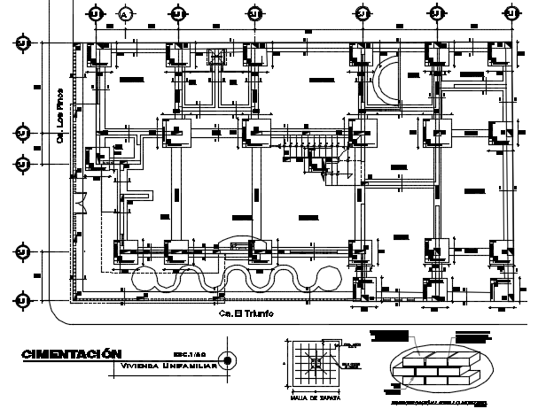
Detail of foundation plan dwg file
Home
Categories
Details
Construction Details
Detail of foundation plan dwg file
Uploaded by:
Dhara
View Profile
View Profile
Description
Detail of foundation plan dwg file, including centre line plan detail, reinforcement detail, dimension detail, naming detail, brick detail, foundation plan detail, etc.
File Type:
DWG
File Size:
7.6 MB
Category::
Details
Sub Category::
Construction Details
type:
Gold
Uploaded by:
Dhara
View Profile
Download
Add to libary
find Latest
Related
Files