Foundation plans to second-floor plan detail dwg file
Description
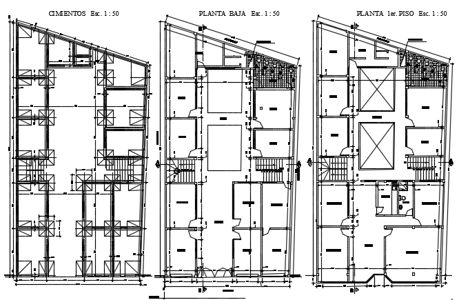
Foundation plans to second-floor plan detail dwg file, with dimension detail, naming detail, stair detail, cut out detail, toilet detail, furniture detail in door and window detail, etc.
Uploaded by:

