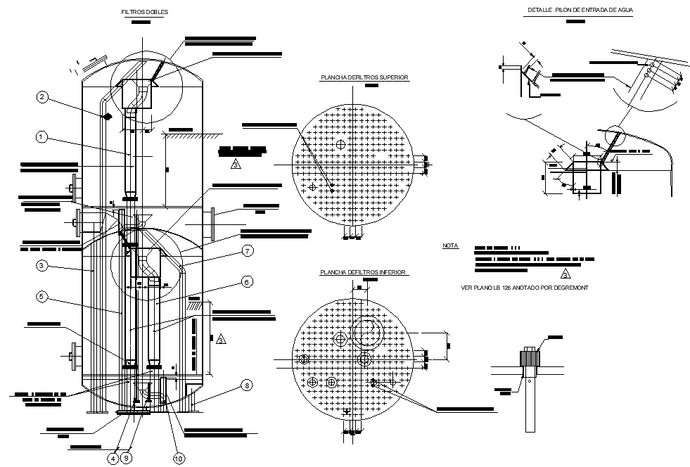
Filter machine detail dwg file
Description
Filter machine detail dwg file, with water entree detail, section line detail, dimension detail, naming detail, etc.
File Type:
DWG
File Size:
2 MB
Category::
Mechanical and Machinery
Sub Category::
Factory Machinery
type:
Gold
Uploaded by:

