Commercial building plan detail dwg file.
Description
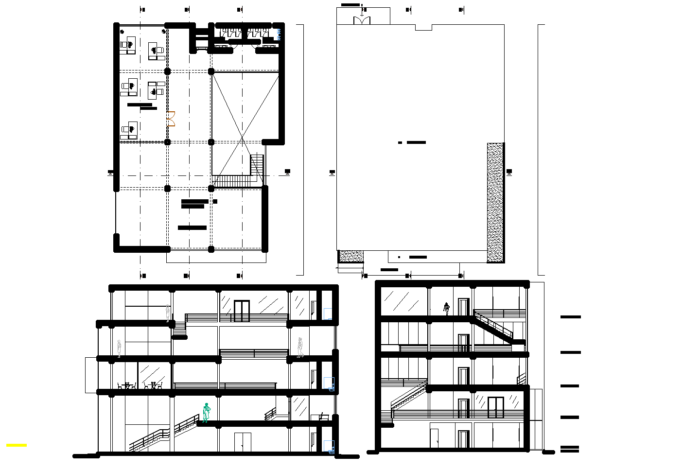
Commercial building with a proper plan. Plan with different options. Also, with detailed elevations. The front and side viewed elevation are shown in the plan.

Uploaded by:
Eiz
Luna

Uploaded by:
Luna