LOGIN
HOME
CATEGORIES
UPLOAD FILE
PRICING
HOUSE PLAN
ABOUT US
CONTACT US
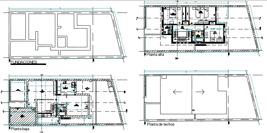
House planning detail dwg file
Home
Categories
Architecture
House Plan
House planning detail dwg file
Uploaded by:
Dhara
View Profile
View Profile
Description
House planning detail dwg file, with section line plan detail, toilet detail, stair detail, bed room detail, door numbering detail, etc.
File Type:
DWG
File Size:
677 KB
Category::
Architecture
Sub Category::
House Plan
type:
Gold
Uploaded by:
Dhara
View Profile
Download
Add to libary
find Latest
Related
Files