LOGIN
HOME
CATEGORIES
UPLOAD FILE
PRICING
HOUSE PLAN
ABOUT US
CONTACT US
Bungalow top view layout plan
Home
Categories
Architecture
Bungalow House Design
Bungalow top view layout plan
Uploaded by:
Dipika
View Profile
View Profile
Description
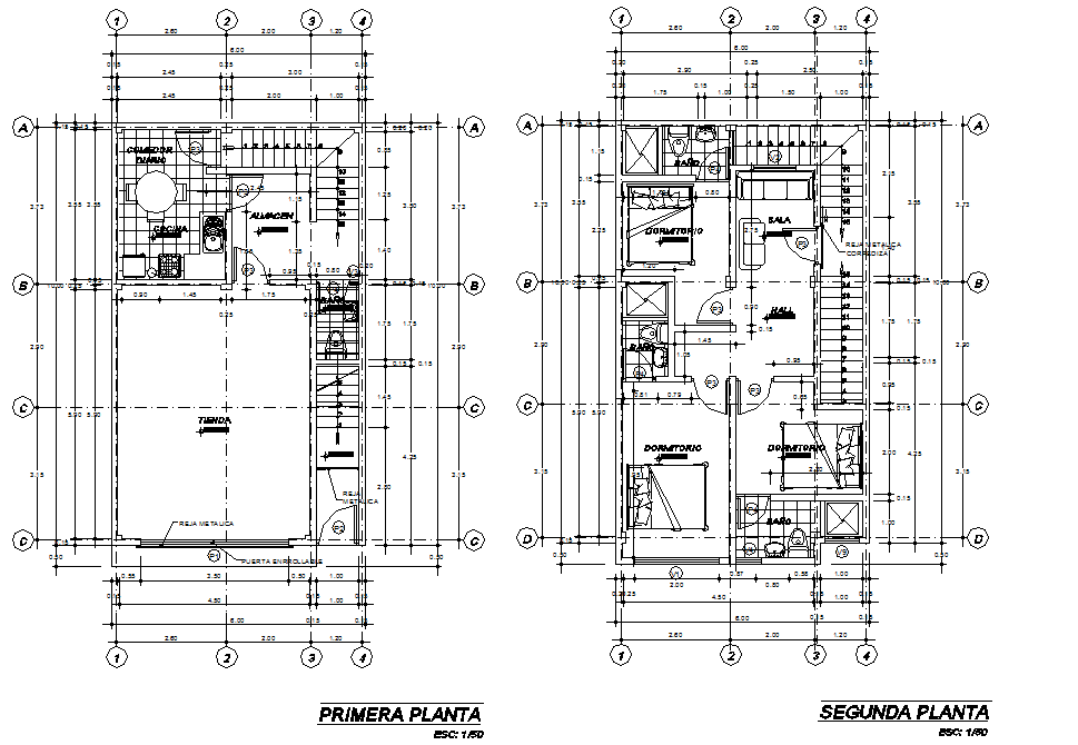
Bungalow top view layout plan,Furniture sectional detailing layout dwg file, all furniture detail is shown, table and chair details
File Type:
DWG
File Size:
920 KB
Category::
Architecture
Sub Category::
Bungalow House Design
type:
Free
Uploaded by:
Dipika
View Profile
Download
Add to libary
find Latest
Related
Files