Construction class room primary level for educative institution plan detail dwg file
Description
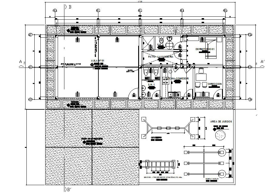
Construction class room primary level for educative institution plan detail dwg file, with center line plan detail, section line detail, dimension detail, naming detail, etc.
Uploaded by:
