LOGIN
HOME
CATEGORIES
UPLOAD FILE
PRICING
HOUSE PLAN
ABOUT US
CONTACT US
Section industrial plant detail dwg file
Home
Categories
Architecture
Industrial Plant
Section industrial plant detail dwg file
Uploaded by:
Dhara
View Profile
View Profile
Description
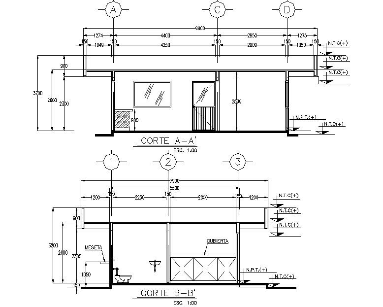
Section industrial plant detail dwg file, with section A-A’ detail, section B-B’ detail, leveling detail, scale 1:100 detail, etc.
File Type:
DWG
File Size:
733 KB
Category::
Architecture
Sub Category::
Industrial Plant
type:
Gold
Uploaded by:
Dhara
View Profile
Download
Add to libary
find Latest
Related
Files