Electrical circuit detail dwg file
Description
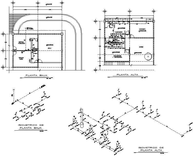
Electrical circuit detail dwg file, including naming detail, dimension detail, stair detail, etc.
File Type:
DWG
File Size:
2.7 MB
Category::
Electrical
Sub Category::
Architecture Electrical Plans
type:
Gold
Uploaded by:

