The powerhouse of a mini hydro-electric power plant plan detail dwg file.
Description
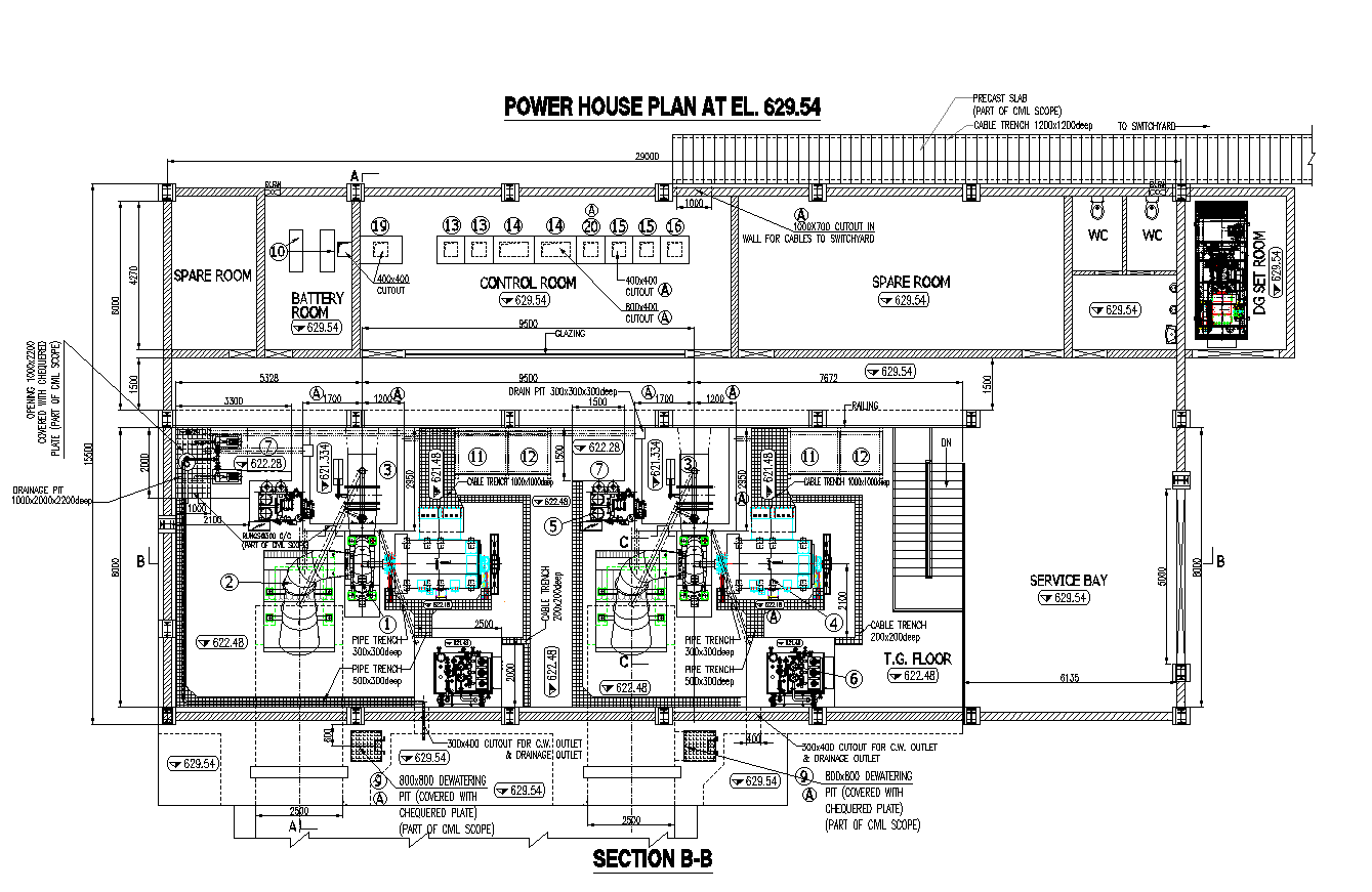
The powerhouse of a mini hydro-electric power plant. The plant includes spare room, control room, battery room, service bay, washroom, D.G set room, T.G floor, etc., Every room is mentioned with their perspective detailing.

Uploaded by:
Liam
White

