LOGIN
HOME
CATEGORIES
UPLOAD FILE
PRICING
HOUSE PLAN
ABOUT US
CONTACT US
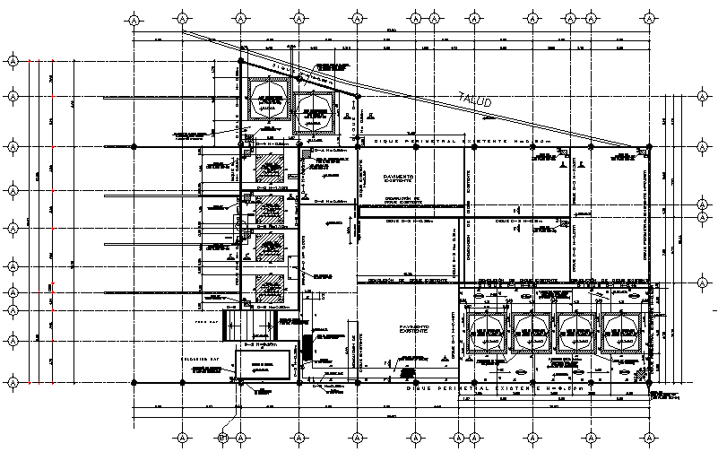
Acid manufacturing factory containment pools plan detail dwg file
Home
Categories
Architecture
Industrial Plant
Acid manufacturing factory containment pools plan detail dwg file
Uploaded by:
Dhara
View Profile
View Profile
Description
Acid manufacturing factory containment pools plan detail dwg file, with diemsnion detail, naming detail, centre line plan detail, etc.
File Type:
DWG
File Size:
148 KB
Category::
Architecture
Sub Category::
Industrial Plant
type:
Gold
Uploaded by:
Dhara
View Profile
Download
Add to libary
find Latest
Related
Files