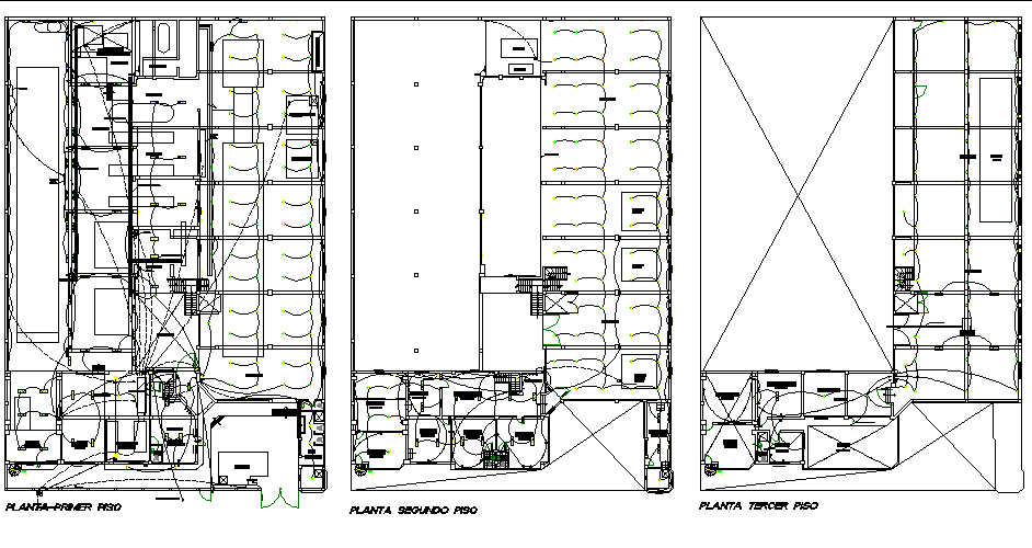
Electrical plan detail dwg file
Description
Electrical plan detail dwg file, with switch boar detail, circuit detail, etc.
File Type:
DWG
File Size:
213 KB
Category::
Electrical
Sub Category::
Architecture Electrical Plans
type:
Gold
Uploaded by:
File Type:
File Size:
Category::
Sub Category::
type:
Uploaded by: