LOGIN
HOME
CATEGORIES
UPLOAD FILE
PRICING
HOUSE PLAN
ABOUT US
CONTACT US
Wooden door detail dwg file
Home
Categories
Furniture
Door & Window Blocks
Wooden door detail dwg file
Uploaded by:
Dhara
View Profile
View Profile
Description
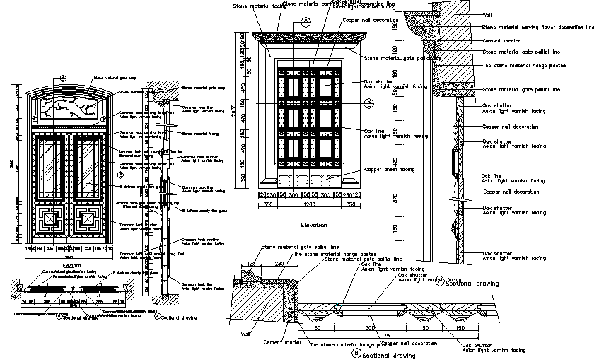
Wooden door detail dwg file, with elevation and section detail, dimension detail, naming detail, etc.
File Type:
DWG
File Size:
2.8 MB
Category::
Furniture
Sub Category::
Door & Window Blocks
type:
Gold
Uploaded by:
Dhara
View Profile
Download
Add to libary
find Latest
Related
Files