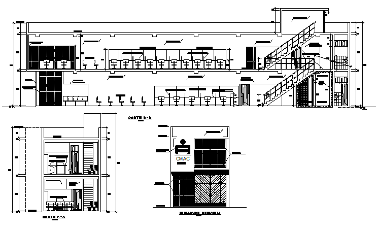
Elevation and section office plan detail dwg file

Elevation and section office plan detail dwg file
Profile

Uploaded by:

Dhara

Description
Elevation and section office plan detail dwg file, including dimension detail, naming detail, stair section detail, section A-A’ detail, section B-B’ detail, etc.
Profile

Uploaded by:

Dhara

find Latest

Related Files

WhatsApp Chat