LOGIN
HOME
CATEGORIES
UPLOAD FILE
PRICING
HOUSE PLAN
ABOUT US
CONTACT US
Section shop plan detail dwg file
Home
Categories
Architecture
Corporate Building
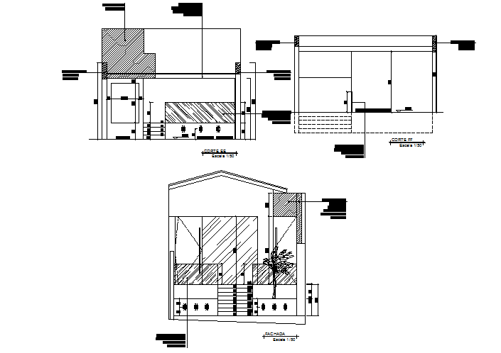
Section shop plan detail dwg file
Uploaded by:
Dhara
View Profile
View Profile
Description
Section shop plan detail dwg file, with section A-A’ detail, section B-B’ detail, elevation detail, dimension detail, naming detail, etc.
File Type:
DWG
File Size:
1.3 MB
Category::
Architecture
Sub Category::
Corporate Building
type:
Gold
Uploaded by:
Dhara
View Profile
Download
Add to libary
find Latest
Related
Files