LOGIN
HOME
CATEGORIES
UPLOAD FILE
PRICING
HOUSE PLAN
ABOUT US
CONTACT US
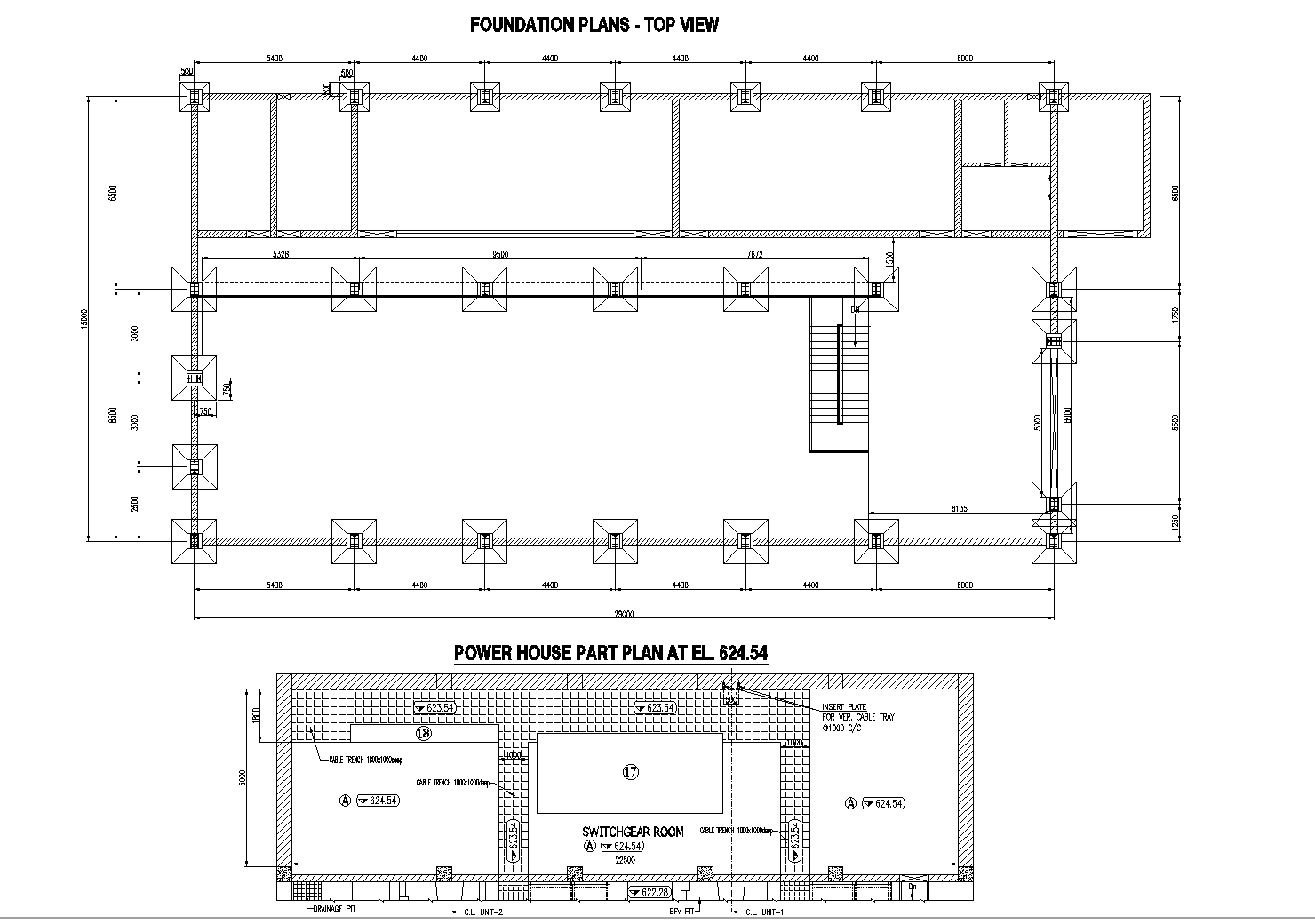
Plan of the powerhouse detail dwg file.
Home
Categories
Architecture
Industrial Plant
Plan of the powerhouse detail dwg file.
Uploaded by:
Liam
White
View Profile
View Profile
Description
Plan of the powerhouse of a mini hydroelectric power plant. 2D plan with elevation. Elevation which also includes switchgear room.
File Type:
DWG
File Size:
3.1 MB
Category::
Architecture
Sub Category::
Industrial Plant
type:
Gold
Uploaded by:
Liam
White
View Profile
Download
Add to libary
find Latest
Related
Files