LOGIN
HOME
CATEGORIES
UPLOAD FILE
PRICING
HOUSE PLAN
ABOUT US
CONTACT US
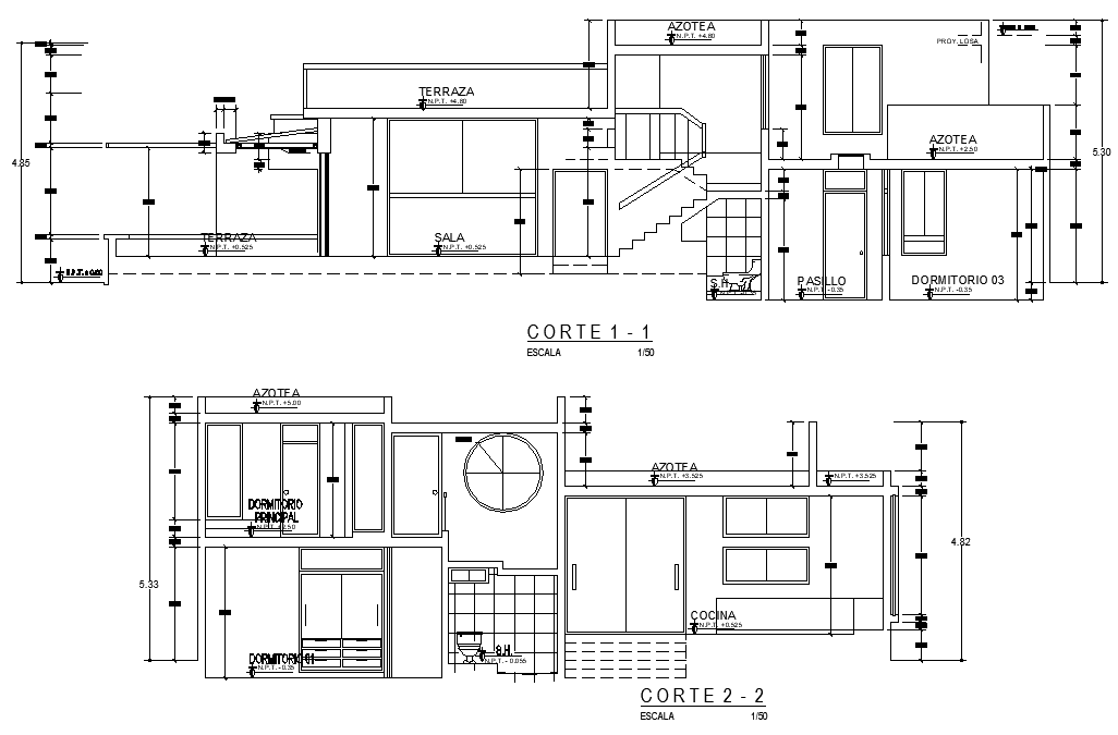
Section Beach house plan detail dwg file
Home
Categories
Architecture
House Plan
Section Beach house plan detail dwg file
Uploaded by:
Dhara
View Profile
View Profile
Description
Section Beach house plan detail dwg file, including dimension detail, naing detail, section 1-1 detail, section 2-2 detail, etc.
File Type:
DWG
File Size:
271 KB
Category::
Architecture
Sub Category::
House Plan
type:
Gold
Uploaded by:
Dhara
View Profile
Download
Add to libary
find Latest
Related
Files