Bridge inter oceanic highway section plan dwg detail file.
Description
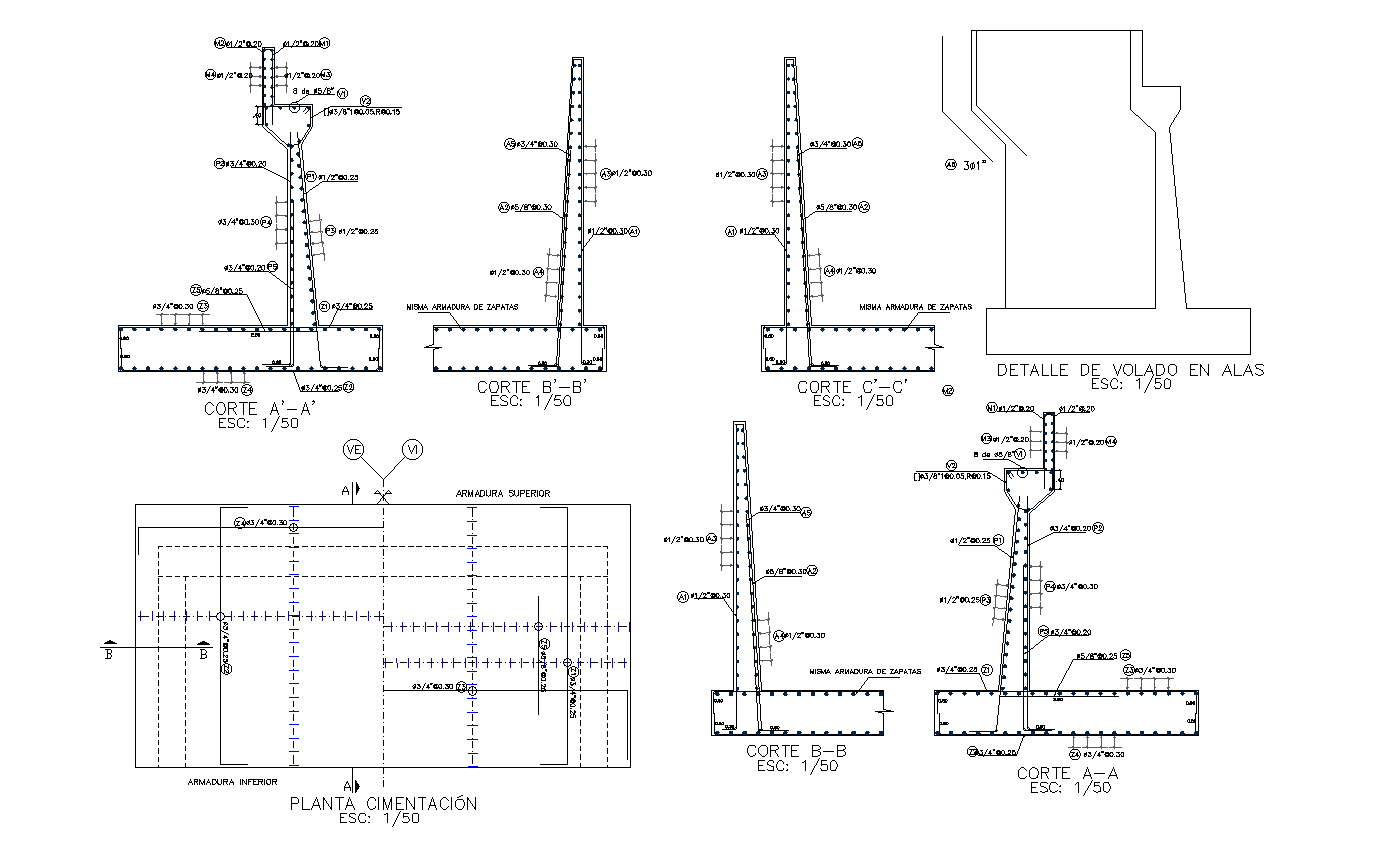
Bridge inter-oceanic highway section plan. 2D plan with detailed elevations. Cementation plan and other sections are shown with proper detailing.

Uploaded by:
Liam
White

Uploaded by:
White