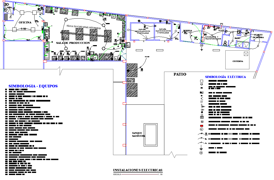
Electrical plan detail dwg file
Description
Electrical plan detail dwg file, with dimension detail, naming detail, toilet detail, scale 1:50 detail, etc.
File Type:
DWG
File Size:
600 KB
Category::
Electrical
Sub Category::
Architecture Electrical Plans
type:
Gold
Uploaded by:

