LOGIN
HOME
CATEGORIES
UPLOAD FILE
PRICING
HOUSE PLAN
ABOUT US
CONTACT US
Detail of elevation plan dwg file
Home
Categories
Architecture
Corporate Building
Detail of elevation plan dwg file
Uploaded by:
Dhara
View Profile
View Profile
Description
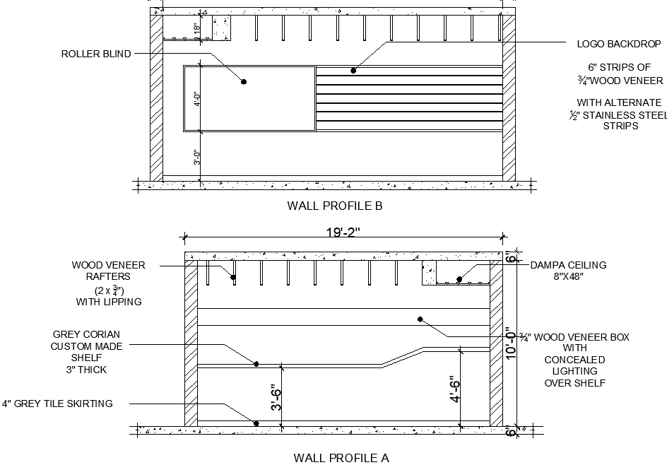
Detail of elevation plan dwg file, with wall profile A detail, wall profile B detail, dimension detail, naming detail, etc.
File Type:
DWG
File Size:
545 KB
Category::
Architecture
Sub Category::
Corporate Building
type:
Gold
Uploaded by:
Dhara
View Profile
Download
Add to libary
find Latest
Related
Files