LOGIN
HOME
CATEGORIES
UPLOAD FILE
PRICING
HOUSE PLAN
ABOUT US
CONTACT US
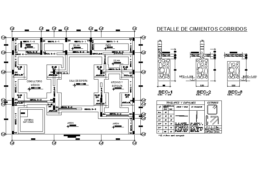
Detail of foundation run dwg file
Home
Categories
Structure
Footing Detail
Detail of foundation run dwg file
Uploaded by:
Dhara
View Profile
View Profile
Description
Detail of foundation run dwg file, with centre line plan detail, diemsnion detail, naming detail, bolt nut detail, scale 1:20 detail, etc.
File Type:
DWG
File Size:
328 KB
Category::
Structure
Sub Category::
Footing Detail
type:
Gold
Uploaded by:
Dhara
View Profile
Download
Add to libary
find Latest
Related
Files