LOGIN
HOME
CATEGORIES
UPLOAD FILE
PRICING
HOUSE PLAN
ABOUT US
CONTACT US
Roof plan detail dwg file
Home
Categories
Details
Construction Details
Roof plan detail dwg file
Uploaded by:
Dhara
View Profile
View Profile
Description
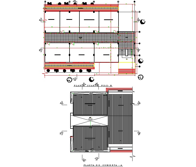
Roof plan detail dwg file, including section line detail, cut out detail, landscaping detail in tree and plant detail, dimension detail, etc.
File Type:
DWG
File Size:
3.5 MB
Category::
Details
Sub Category::
Construction Details
type:
Gold
Uploaded by:
Dhara
View Profile
Download
Add to libary
find Latest
Related
Files