LOGIN
HOME
CATEGORIES
UPLOAD FILE
PRICING
HOUSE PLAN
ABOUT US
CONTACT US
3 Bedroom House Plan In AutoCAD File
Home
Categories
Architecture
Bungalow House Design
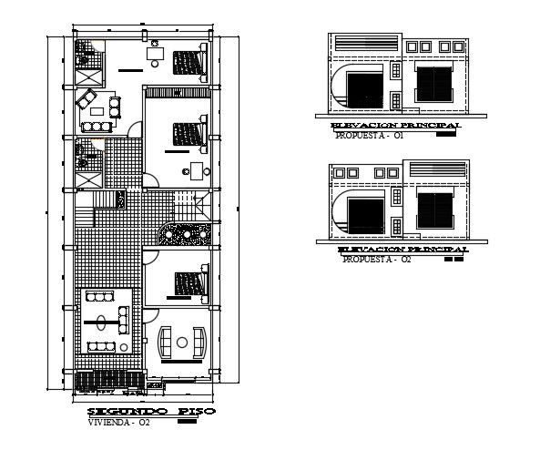
3 Bedroom House Plan In AutoCAD File
Uploaded by:
Dipika
View Profile
View Profile
Description
3 Bedroom House Plan In AutoCAD File which includes living room, kitchen, dining area, 3 bedrooms and also elevations of the house.
File Type:
DWG
File Size:
941 KB
Category::
Architecture
Sub Category::
Bungalow House Design
type:
Gold
Uploaded by:
Dipika
View Profile
Download
Add to libary
find Latest
Related
Files