LOGIN
HOME
CATEGORIES
UPLOAD FILE
PRICING
HOUSE PLAN
ABOUT US
CONTACT US
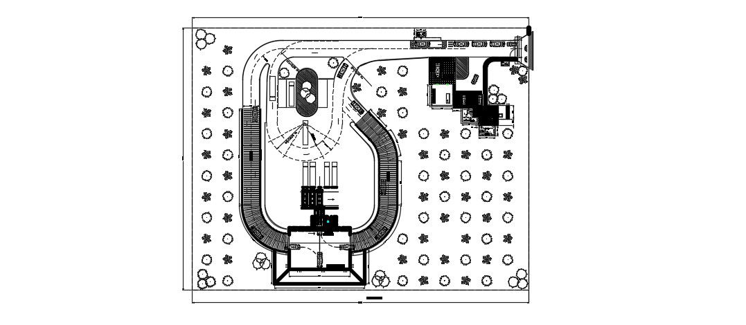
Assembly Plan In AutoCAD File
Home
Categories
Architecture
Corporate Building
Assembly Plan In AutoCAD File
Uploaded by:
Dhara
View Profile
View Profile
Description
Assembly Plan In AutoCAD File which includes details of garden area, parking, technical room, platform, tank, office, waiting room, ramp detail, staircase details.
File Type:
DWG
File Size:
3.6 MB
Category::
Architecture
Sub Category::
Corporate Building
type:
Gold
Uploaded by:
Dhara
View Profile
Download
Add to libary
find Latest
Related
Files