LOGIN
HOME
CATEGORIES
UPLOAD FILE
PRICING
HOUSE PLAN
ABOUT US
CONTACT US
Small Office Design In AutoCAD File
Home
Categories
Architecture
Corporate Office Interior
Small Office Design In AutoCAD File
Uploaded by:
Dhara
View Profile
View Profile
Description
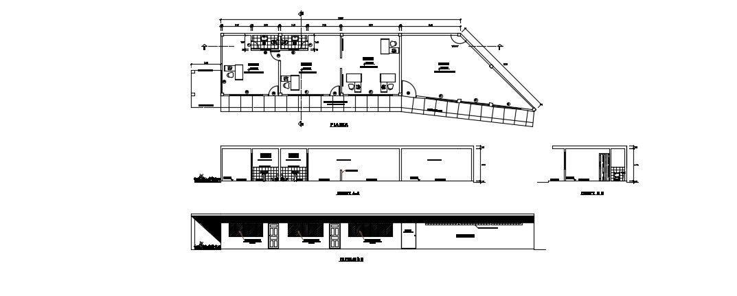
Small Office Design In AutoCAD File which shows offices, warehouse, projector room, floor details, door and window details.
File Type:
DWG
File Size:
733 KB
Category::
Architecture
Sub Category::
Corporate Office Interior
type:
Gold
Uploaded by:
Dhara
View Profile
Download
Add to libary
find Latest
Related
Files