LOGIN
HOME
CATEGORIES
UPLOAD FILE
PRICING
HOUSE PLAN
ABOUT US
CONTACT US
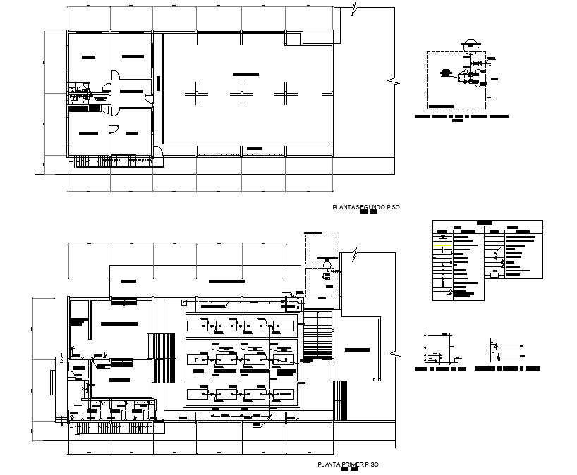
Plumbing fridge fishing plan detail dwg file
Home
Categories
Architecture
Industrial Plant
Plumbing fridge fishing plan detail dwg file
Uploaded by:
Dhara
View Profile
View Profile
Description
Plumbing fridge fishing plan detail dwg file, with dimension detail, naming detail, table specification detail, furniture detail in door and window detail, etc.
File Type:
DWG
File Size:
279 KB
Category::
Architecture
Sub Category::
Industrial Plant
type:
Gold
Uploaded by:
Dhara
View Profile
Download
Add to libary
find Latest
Related
Files